Rzuty – układ
Parter
Projekt domu Kubuś 93,04 m² to idealne rozwiązanie dla rodziny ceniącej komfort i funkcjonalność. Przemyślany układ z przytulnym hall, kuchnią, przestronnym salonem z jadalnią, pokojem i praktycznym WC zapewnia radość mieszkania.
- Wc – 4 m²
- Pokój – 7,55 m²
- Kuchnia – 8,26 m²
- Pokój dzienny + jadalnia – 24,26 m²
Razem rzut parteru – 51,50 m²
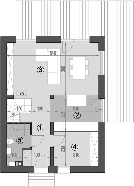
Piętro / Poddasze
Projekt Rzut Piętro/Poddasze zapewnia przestrzenie sprzyjające spotkaniom i relaksowi. Nowoczesność przeplata się z przytulnością, tworząc idealne warunki dla codziennej harmonii i inspirujących chwil.
- Korytarz – 3,24 m²
- Łazienka – 4,19 m²
- Pokój – 11,11 m²
- Pokój – 12,37 m²
- Pokój – 10,63 m²
Razem rzut parteru – 41,54 m²
Opis domu
Neo – Twój dom pełen harmonii
Poznaj projekt domu „Neo” – miejsce, które otuli Cię ciepłym blaskiem, harmonią oraz nowoczesną przytulnością. Wchodząc do wnętrza, powita Cię przestronny salon z jasną jadalnią i otwartą kuchnią, gdzie ciepłe światło wpadające przez duże okna daje poczucie spokoju i komfortu w każdym zakątku. Wyobraź sobie wspólne poranki przy aromatycznej kawie oraz wieczory pełne śmiechu w gronie rodziny i przyjaciół. Dodatkowy pokój na parterze stanie się Twoją oazą twórczości lub gościnnym zaciszem na długie rozmowy. Na poddaszu, trzy wygodne pokoje będą prywatnym azylem dla domowników, a duża, komfortowa łazienka zaprosi Cię do odprężających kąpieli po długim dniu. Dom Neo to nowoczesna bryła, której minimalistyczny charakter podkreślają eleganckie linie dachu dwuspadowego, perfekcyjnie komponując się z otoczeniem. Wyjdź na taras, poczuj kojący dotyk promieni słonecznych i oddaj się radości rodzinnych spotkań lub wieczornego grillowania. Neo to Twój dom pełen dobrych chwil i pięknych wspomnień.




















